Located on one of Athenrees' finest streets sits this private, north facing and elevated 488m2 easy care section.
Views over the wetlands to the Kaimai Ranges and glimpses out to the Pacific Ocean.
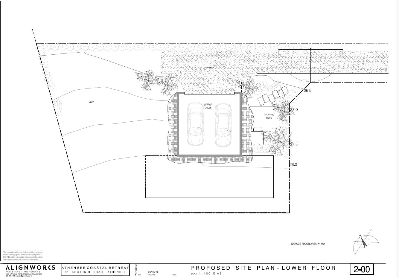
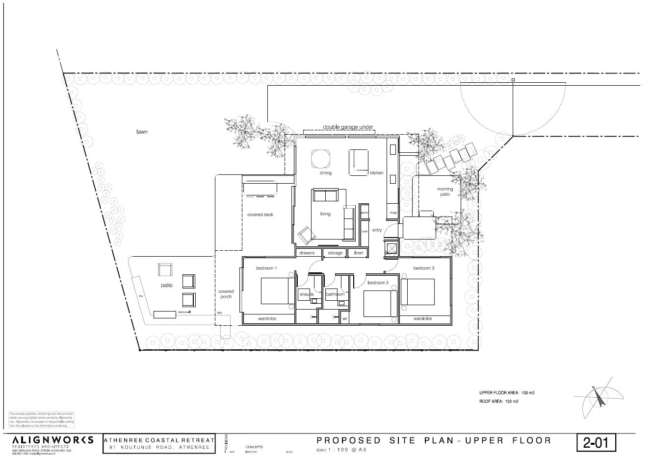
Concept drawings available for a two storey, 3 bedroom, 2 bathroom home with double garage or plan your own design. Perfect for permanent living or as a weekend / holiday retreat.
Fabulous family friendly and peaceful neighbourhood. Walk to the estuary or hot pools or a few minutes drive to Waihi Beach.
Fulfil your dream and move to the coast.
This really is a special section!
Call Graeme today
Main property features
 
 














