Now available with two premium house and land package options, this elevated 2,207sqm section in Ngarimu Bay (bordering Thornton Bay) offers the rare chance to secure coastal lifestyle with the hard work already done. Whether you're seeking a high-spec executive build or a smart family layout, the flexibility is here; either continue with one of the proposals below or you are free to choose your own builder and commence your own plan and style.
Package Options:
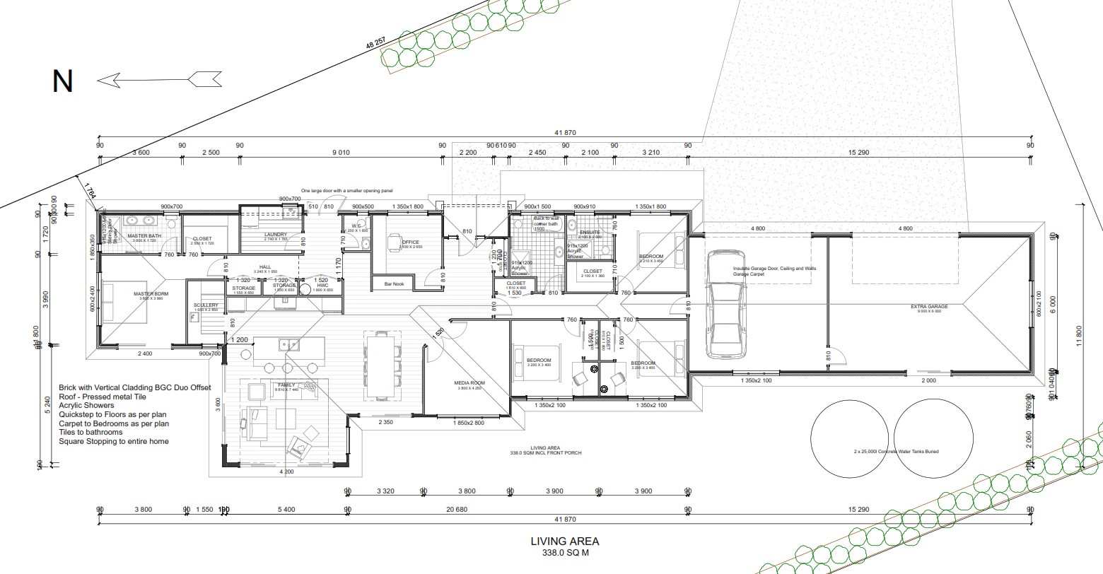
Option 1 - From $1,638,000 (including land)
A luxury 338sqm home designed for space, privacy and effortless entertaining.
• 4 bedrooms + office
• 3 bathrooms (2 ensuites) + powder room
• Grand master suite with walk-in robe and large ensuite
• Guest suite with its own ensuite and walk-in robe
• 5-car garaging
• Media room, scullery, expansive open-plan living
Option 2 - From $1,149,000 (including land)
A stylish and practical 237sqm home perfect for families or holiday living.
• 4-5 bedrooms
• 2 bathrooms
• 2 living areas
• Double garage
• Master with ensuite and walk-in robe
Both packages include the land and are customisable in partnership with experienced builders.
The Location: Tranquil, Elevated and Ready to Go
This 2,207sqm section enjoys approx. 72 metres of sea-facing frontage, with a gently contoured site that lends itself beautifully to indoor-outdoor flow, expansive decking, or even a future pool. Established fruit trees, wide views, and all-day sun add to the appeal.
Set in an exclusive subdivision with some of the Thames Coast's finest homes, you're just 10 minutes from Thames township, with Te Puru School, boat ramps, and scenic bush walks all within easy reach.
Whether you're ready to build now or want to secure a piece of paradise for the future, this property delivers on lifestyle, location and long-term value.
Contact Steven today for house plan details, site information, or to arrange a viewing.
DISCLAIMER: Prices are subject to change and are dependent on final specifications, site works, and build contract terms. The advertised price reflects the "from" price for Option 2 and is intended as a guide only. Final pricing will be confirmed upon agreement of both the land purchase and a signed build contract. The land is sold separately and independently from the build, and purchasers must enter into a separate agreement with the builder for construction. All images, renders, and illustrations are for marketing purposes only and may depict optional upgrades or features not included in the base price.


























